Máng lưới là sản phẩm đang được sử dụng nhiều trong các công trình vừa và nhỏ, các nhà máy, hệ thống cáp đi trong nhà hay ngoài trời. Sản phẩm này có gì đặc biệt so với các sản phẩm máng cáp khác mà lại được ứng dụng nhiều như thế? Nếu bạn chưa biết ưu điểm nổi trội và lợi ích mà nó mang lại ! Bestray sẽ giúp bạn tìm câu trả lời qua bài viết dưới đây nhé.
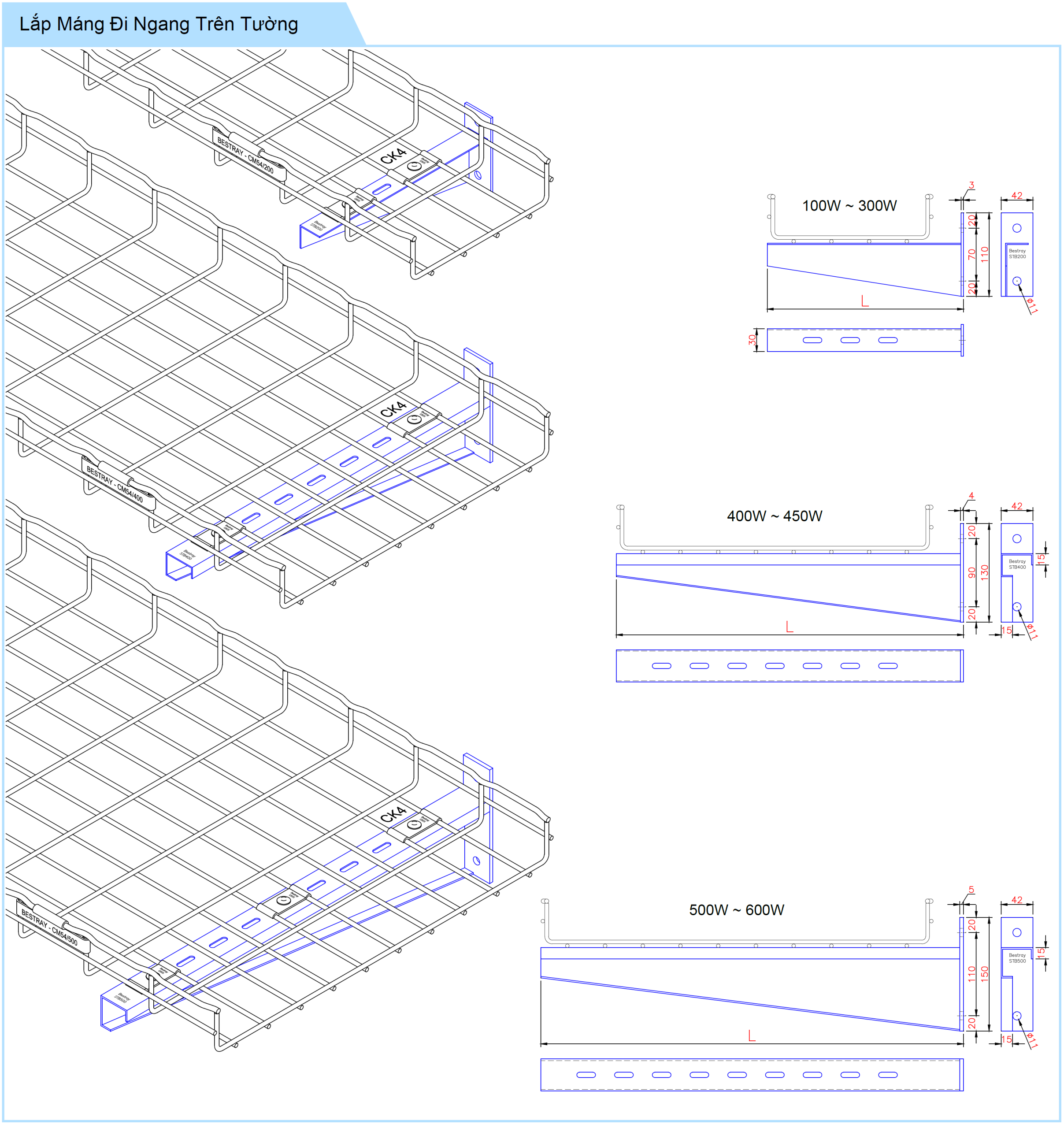
| Tên SP | L (mm) | T (mm) | Mã SP | ||
| S4 | HG | EG | |||
| STB100 | 160 | 1.2 | STB100S4 | STB100HG | STB100EG |
| STB150 | 210 | 1.2 | STB150S4 | STB150HG | STB150EG |
| STB200 | 260 | 1.5 | STB200S4 | STB200HG | STB200EG |
| STB300 | 360 | 1.5 | STB300S4 | STB300HG | STB300EG |
| STB400 | 460 | 1.5 | STB400S4 | STB400HG | STB400EG |
| STB450 | 510 | 1.5 | STB450S4 | STB450HG | STB450EG |
| STB500 | 560 | 2.0 | STB500S4 | STB500HG | STB500EG |
| STB600 | 660 | 2.0 | STB600S4 | STB600HG | STB600EG |
S6 (Inox 316) S4 (Inox 304) HG (Mạ Kẽm Nhúng Nóng) DC (Mạ Kẽm Siêu Bền) PG (Tôn Mạ Kẽm) EG (Mạ Kẽm Xi) PC (Sơn Tĩnh Điện)


































