Wire mesh cable trays are widely used in small and medium-sized construction projects, factories, and indoor or outdoor cabling systems. What makes this product special compared to other cable trays that makes it so popular? If you’re unsure about its outstanding advantages and benefits, Bestray will help you find the answer in the article below.
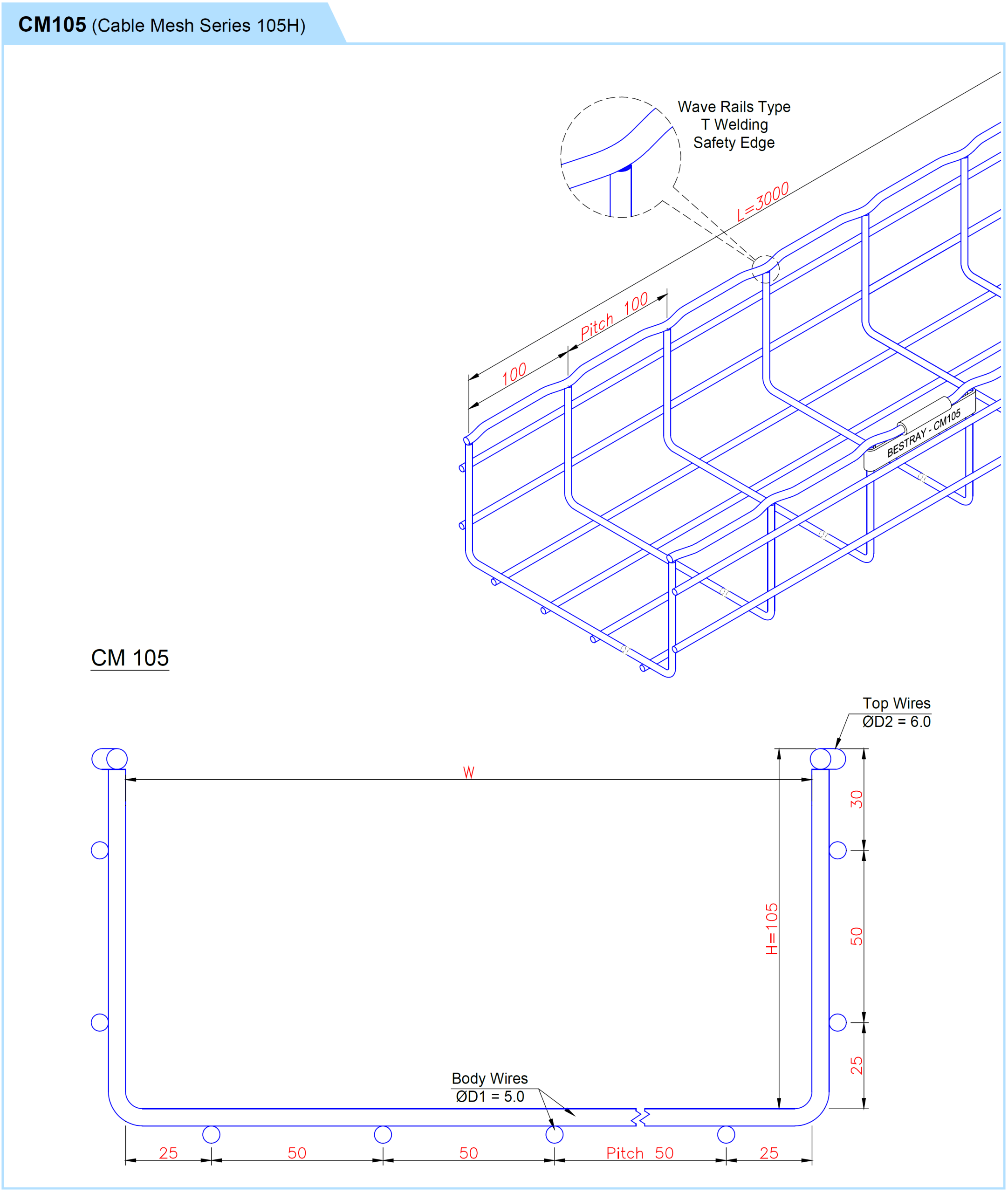
| No | Product Name | Height | Width | Length | Wire Diameter (mm) | Weight(kg/pc) | Code | ||||
| Body WireØD1 | Top WireØD2 | S4 | HG | EG | PC | ||||||
| 1 | CM 105/100 | 105 | 100 | 3000 | 5.0 | 6.0 | 5.42 | CM1010S4 | CM1010HG | CM1010EG | CM1010PC |
| 2 | CM 105/150 | 105 | 150 | 3000 | 5.0 | 6.0 | 6.10 | CM1015S4 | CM1015HG | CM1015EG | CM1015PC |
| 3 | CM 105/200 | 105 | 200 | 3000 | 5.0 | 6.0 | 6.79 | CM1020S4 | CM1020HG | CM1020EG | CM1020PC |
| 4 | CM 105/300 | 105 | 300 | 3000 | 5.0 | 6.0 | 8.16 | CM1030S4 | CM1030HG | CM1030EG | CM1030PC |
| 5 | CM 105/400 | 105 | 400 | 3000 | 5.0 | 6.0 | 9.53 | CM1040S4 | CM1040HG | CM1040EG | CM1040PC |
| 6 | CM 105/450 | 105 | 450 | 3000 | 5.0 | 6.0 | 10.22 | CM1045S4 | CM1045HG | CM1045EG | CM1045PC |
| 7 | CM 105/500 | 105 | 500 | 3000 | 5.0 | 6.0 | 10.90 | CM1050S4 | CM1050HG | CM1050EG | CM1050PC |
| 8 | CM 105/600 | 105 | 600 | 3000 | 5.0 | 6.0 | 12.27 | CM1060S4 | CM1060HG | CM1060EG | CM1060PC |
S6 (SUS316) S4 (SUS304) HG (Hot Dip Galvanized) DC (Dacromet Coating) PG (Pre Galvanized) EG (Electro Galvanized) PC (Power Coating)

















