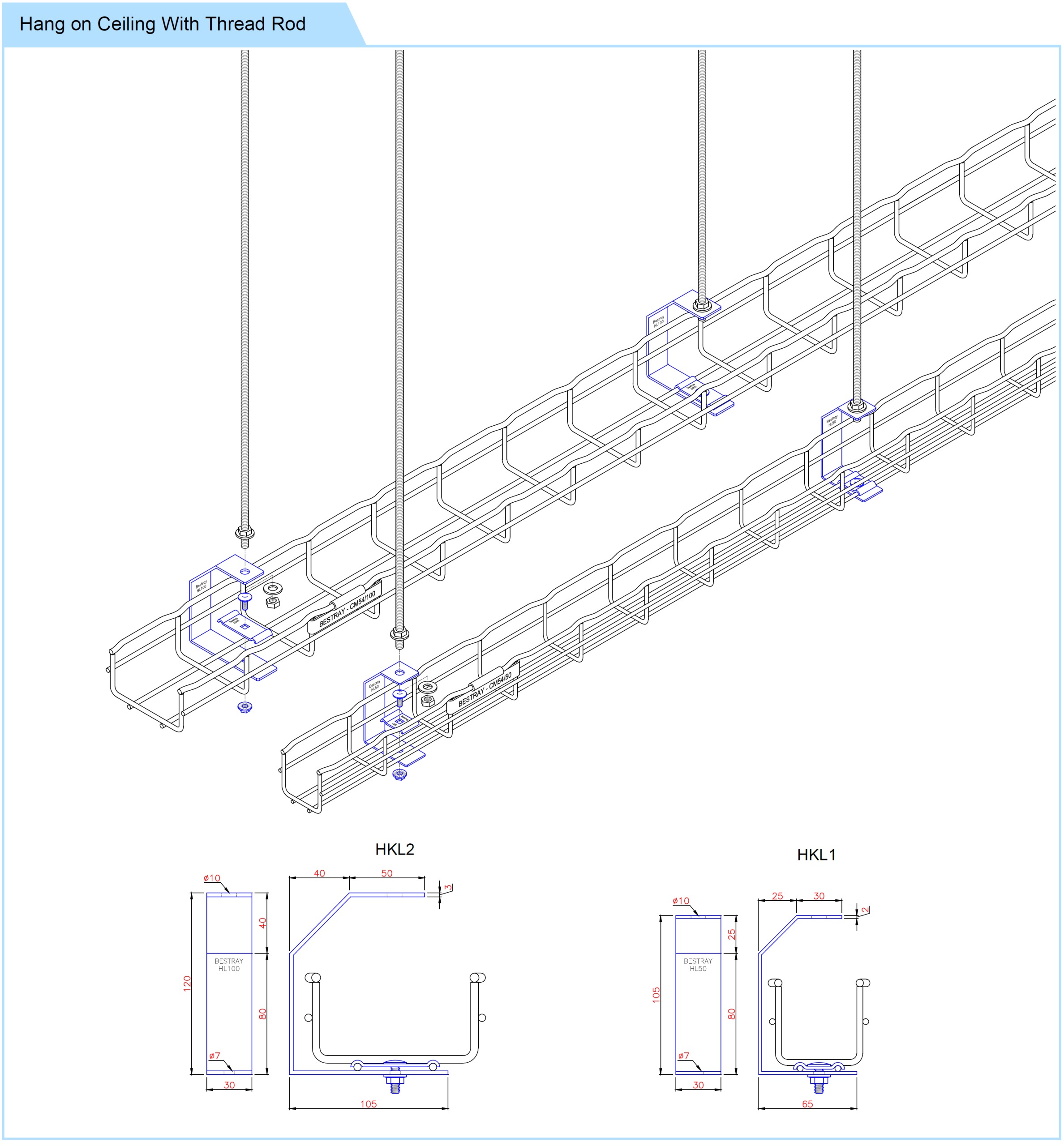
• HKL1 = HL50 + C25 + BLCV620B
• HKL2 = HL100 + C50S + BLCV620B
| For Tray Width | Code | ||
| S4 | DC | EG | |
| CM 30/50CM 54/50 | HKL1S4 | HKL1DC | HKL1EG |
| CM 30/100CM 54/100 | HKL2S4 | HKL2DC | HKL2EG |
S6 (SUS316) S4 (SUS304) HG (Hot Dip Galvanized) DC (Dacromet Coating) PG (Pre Galvanized) EG (Electro Galvanized) PC (Power Coating)
































